A Carpenter’s House

도시에 살다가 농촌으로 이주하는 부부를 위한 집이다.

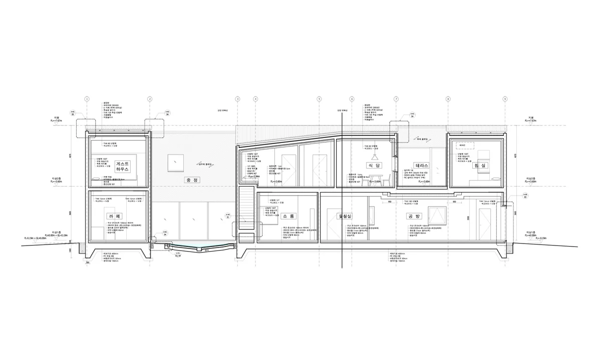
단독주택의 용도 외에 가구목수인 남편이 운영할 가구공방와 쇼룸, 부인이 운영할 까페와 게스트하우스를 포함하는 복합용도의 건축물로 계획되었다. 밀양 지역에 위치한 대지는 자연 뿐만 아니라 주변 이웃 모두에게도 열려 있는 상태였다. 대지 경계를 따라 담을 만들지 않으면서 그들이 사용하기에 적합한 외부 공간이 필요하다고 생각했다.

외부 공간은 세 개의 보이드 공간으로 계획했다.

가장 큰 보이드는 카페의 이용객이 사용할 수 있는 중정이다. 키 높이보다 조금 높은 담이 있고, 담에는 개구부가 있어서 들여다 보고자 하면 들여다 볼 수 있는 마당이다. 까페의 손님들이 갇혀 있다는 느낌을 받지 않으면서 보호받기를 원했다.

두번째 보이드는 2층의 주택에서 사용할 테라스 같은 공간이다. 지면에서 떨어져 있기 때문에 상대적으로 시선으로부터 자유로운 공간으로 빨래를 널거나 화분을 키울 수 있는 장소로 사용될 수 있다.

세번째 보이드는 앞선 두 보이드에 비해 외부로 열려 있는 공간이다. 쇼룸의 출입구에 있는 작은 포치(porch) 역할을 하는 공간이다. 쇼윈도를 들여다 보는 손님들에게 진입을 알리는 곳이자 비 오는 날에도 가구를 전시할 수 있는 곳이다.

mod-1-s.jpg

위치: 경상남도 밀양시

용도: 단독주택 및 근린생활시설

규모: 지상 2층 / 연면적 346.03 제곱미터

설계 기간: 2016. 1. - 2017. 3.

설계: 김남건축 (김진휴 + 남호진)

협력: 터구조 (구조) / 극동파워테크 (전기) / 타임테크 (기계) / 지평 R&D (토목)

access.jpg
int-CAFE.jpg
openings1.jpg
t24.jpg
MY-03.jpg