KNO

논현동에 위치한 오피스 건물이다.

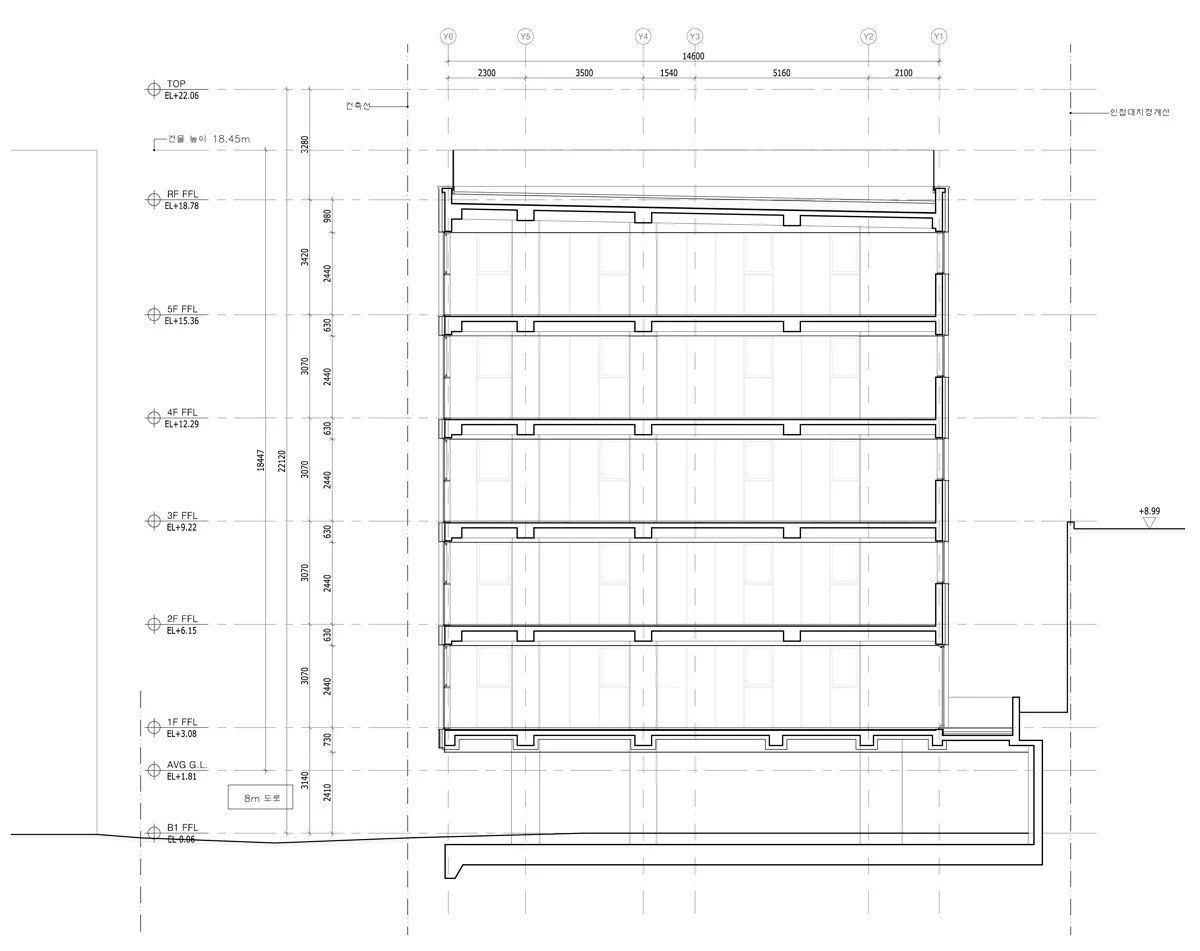
이 프로젝트의 요구사항은 매우 현실적인 것들로, 대지에 허용되는 최대한의 면적 활용할 것, 누가 임대해도 불만이 없을 정돈된 평면, 진입층을 비워서 주차공간으로 사용하는 것 등이었다. 대지는 급경사지에 위치하여 진입층은 절반 이상이 땅에 묻혀 있는 지하 주차장이다. 그 위로는 지상 5층 규모의 임대용 사무실이 위치한다. 정북일조 사선의 영향 받는 대지에서 최대한의 면적을 확보하기 위해 건물은 폭이 좁고 긴 형상이 되었으며, 내부의 레이아웃에 제약을 주지 않기 위해서 입면은 개폐창이 포함된 전면 유리로 계획했다. 서향의 햇빛으로부터 사무공간을 보호하기 위하여 건물 서측편에 계단, 엘레베이터, 화장실 등의 서비스 공간을 배치했다.

기둥과 슬라브는 유리면보다 돌출되게 함으로써 건물의 구조적인 뼈대를 바깥으로 드러내도록 하였다. 서울의 풍경에서 가장 흔히 볼 수 있는 밝은 색의 포천석으로 뼈대를 감싸되, 실리콘 조인트가 아닌 오픈조인트 방식으로 처리함으로써 정갈한 외관을 더 오랜 시간 간직할 수 있도록 했다.

위치: 서울시 강남구 논현동

규모: 지하1층 지상5층 / 연면적 880.40 제곱미터

설계 기간: 2018. 9. - 2018. 12.

시공 기간: 2019. 2. - 2020. 1.

설계: 건축사사무소 김남 (김진휴 + 남호진)

시공: 코워커스

협력: 터구조 (구조) / 극동파워테크 (전기) / 타임테크 (기계) / 토우지오 (토목) / 김경태작가 (사진)

KIMNAM_P_6182_s.jpg
KIMNAM_P_6177.jpg
KIMNAM_P_6181_s.jpg
KIMNAM_P_6184.jpg
_DSF8238_s.jpg
nhd-plan2.jpg
nhd-sec2.jpg